不動産
Real estate
不動産・土地情報
建物 :中古戸建
郡山市安積町長久保3丁目 2階建 3LDK
基本情報
Infomation
- 販売価格
- 3,680万円
| 所在地 | 福島県郡山市安積町長久保3丁目32-10 |
|---|---|
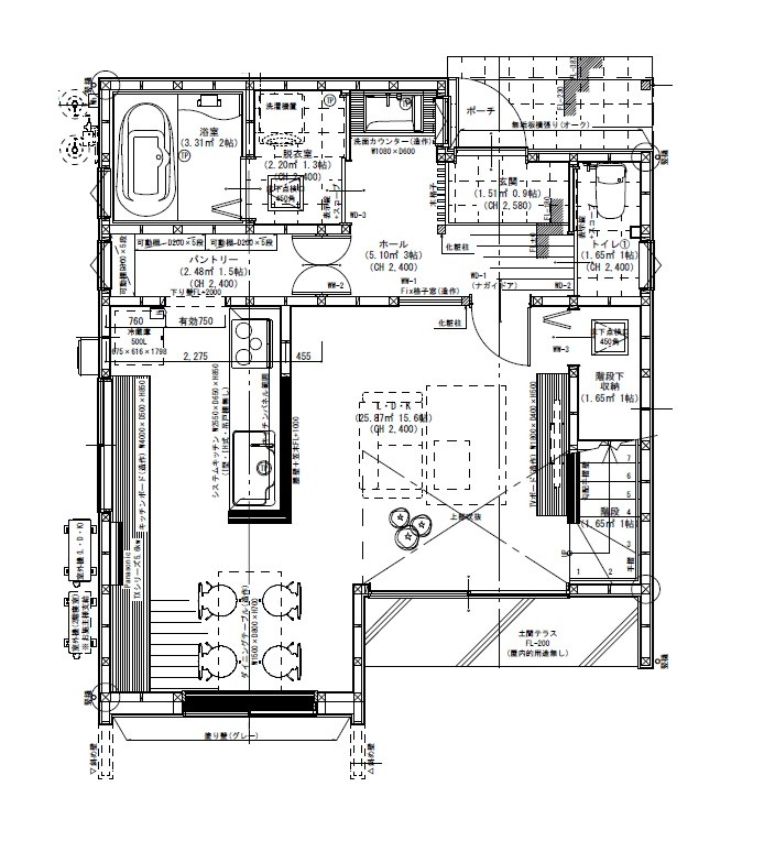
| 間取り | 3LDK |
| 延床面積 | 89.77㎡(27.15坪) |
| 敷地面積 | 166.09㎡ |
| 断熱/気密 | UA値:0.40W/㎡K C値:0.18㎠/㎡ ηAC値:1.6 Q値:1.31 |
|---|---|
| その他 | スーパーウォール工法 太陽光発電:3.9kW搭載 主要採光面:南向き |
築5年 北欧スタイルの高性能中古住宅|新築同等の快適さを、賢い価格で
2026年3月24日時点の販売状況
販売中:1棟
ブルーグレーがアクセントとして映える、北欧スタイルのお家。
スーパーウォール工法・UA値0.40・C値0.18という
高断熱・高気密性能を誇りながら、
内装は無垢床・造作キッチンのこだわり仕様。
築5年の建物ですが、設備も内装もほぼ新品同様のコンディションです。
こちらの物件は見学できます!
目次
[ 物件のポイント ] ※写真は新築時のものです
●リビングアクセス階段で家族のコミュニケーションが生まれる間取り
帰宅した子どもが必ずリビングを通る設計。
自然と会話が生まれる、家族のつながりを大切にした間取りです。

●無垢床・キッチン造作などこだわりの設え
足裏に伝わる無垢の温もり。
毎日使うキッチンも、使い勝手にとことんこだわった造作仕様です。

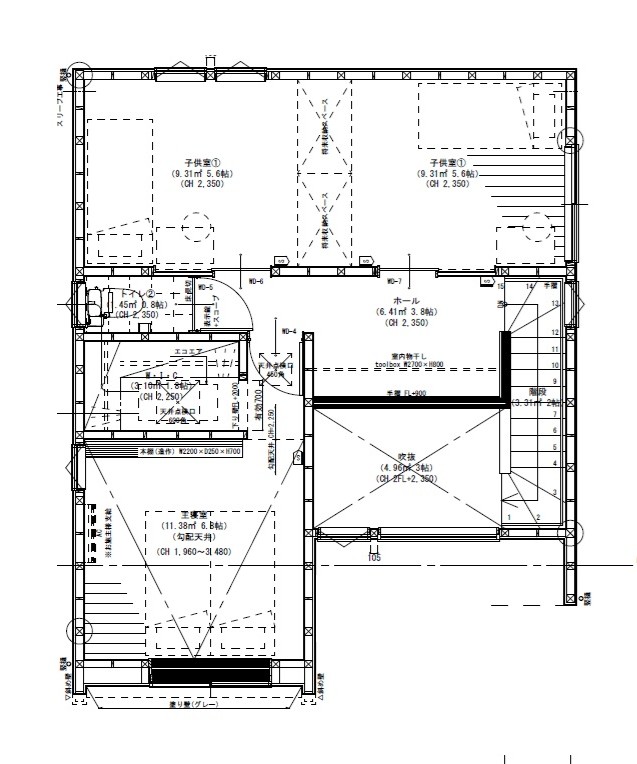
●2階の子供部屋は、間仕切りなしの広々空間
お子様の成長に合わせて、お部屋を2つに分けることもできます。

[ 価格について ]
同エリア・同等スペックの新築戸建て相場:約4,200〜4,500万円
本物件:3,680万円(築5年)
差額の約500〜800万円を、
家具やリフォーム・教育費・旅行など「暮らしの豊かさ」に使えます。
[ 毎月の返済目安 ]
3,680万円/35年ローン/金利0.5%(変動)の場合
→ 月々 約96,000円~
※頭金・諸費用・金利により異なります。詳しくはご相談ください。
[ 周辺施設について ]
●お買い物
スーパーかわちや 安積店:徒歩3分 / 220m
ヨークベニマル 安積町店:徒歩12分 / 850m
薬王堂 郡山安積店:徒歩6分 / 450m
セブンイレブン 郡山安積町長久保店:徒歩6分 / 450m
徒歩15分圏内にスーパーが2か所あり、薬局やコンビニも近いため普段の生活には困らないエリアです。
- かわちや 安積店
- ヨークベニマル 安積町店
- 薬王堂 郡山安積店
●通学環境
郡山市立安積町第三小学校:徒歩22分 / 1.6km
郡山市立安積第二中学校:徒歩28分 / 2.2km
どちらも徒歩30分圏内の場所にあります。
- 郡山市立安積第三小学校
- 郡山市立安積第二中学校
●交通アクセス
物件の東側には県道17号があり、また西側は国道4号に繋がります。
郡山市内だけでなく、市外へのアクセスもしやすいエリアです。
※詳細は、ページ下部のGoogle Mapをご確認ください。
最寄りの駅は、安積永盛駅。
徒歩15分程なので、電車を使った移動も便利です。
- 安積永盛駅
北欧スタイルの3LDK中古物件のご紹介でした。
ご興味のある方は、お早めにお問い合わせください!
アクセス
Googlemap
物件概要Outline
| 所在地 | 福島県郡山市安積町長久保3丁目32-10 |
|---|---|
| 物件種別 | 中古戸建 |
| 価格 | 3,680万円 |
| 新築年月 | 2021年4月 |
| 間取り | 3LDK |
| 構造 | 木造2階建 |
| 敷地面積 | 166.09㎡ |
| 延床面積 | 89.77㎡(27.15坪) |
| 地目 | 宅地 |
|---|---|
| 建ぺい率 | 50% |
| 用途地域 | 第一種低層住居専用地域 |
| 容積率 | 100% |
| 権利 | 所有権 |
| 取引態様 | 一般媒介 |
備 考







